W poniedziałek Mariusz Palej, wójt gminy Rzezawa, podpisał umowę z wykonawcą na kompleksową przebudowę budynku w Dąbrówce, w którym ma powstać przedszkole integracyjne. Inwestycja będzie kosztować prawie 1,74 mln zł.
Obiekt, w którym będzie mieścić się nowe przedszkole to trzykondygnacyjny budynek wolnostojący znajdujący się na terenie Publicznej Szkoły Podstawowej im. Prymasa Stefana Kardynała Wyszyńskiego. Niedawno docieplone zostały w nim ściany i strop oraz wymieniona stolarka okienna i drzwiowa. Wymieniono także jego pokrycie dachowe.
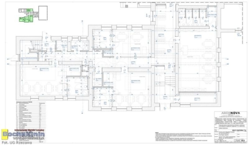
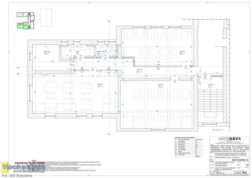
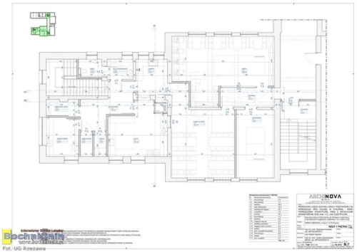
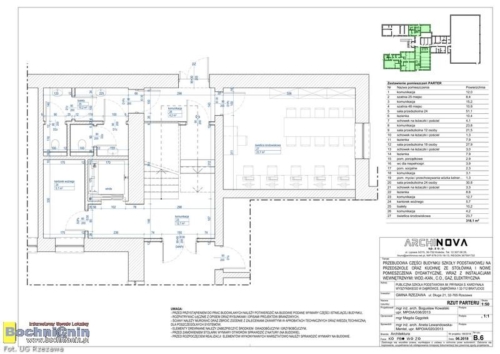
Wkrótce w ramach podpisanej umowy na parterze zostaną utworzone dwie sale przedszkolne, a także szatnie, łazienki oraz sala do rehabilitacji, która będzie wyposażona w nowoczesny sprzęt do ćwiczeń. Na pierwszym piętrze będzie się mieściła m.in. kuchnia obsługująca przedszkole oraz szkołę, stołówka, świetlica i sala rekreacyjna. Na drugim piętrze powstaną natomiast trzy nowoczesne sale dydaktyczne wraz z pokojem pedagoga i toaletami.
Cały budynek przedszkola w Dąbrówce będzie przystosowany do potrzeb osób niepełnosprawnych. Dzięki budowie windy będą one miały dostęp do wszystkich pomieszczeń znajdujących się w obiekcie. Do budynku przedszkola zostanie również zamontowana specjalna pochylnia, a w jego wnętrzu pojawią się uchwyty ścienne. Ponadto na każdej jego kondygnacji powstanie toaleta dla osób niepełnosprawnych.
Na terenie przedszkola zostaną zamontowane również specjalne płyty ostrzegawcze z wypukłościami. Opracowane zostaną także różne schematy kolorystyczne wnętrz, co ma ułatwić poruszanie się po budynku osobom niewidomym i słabowidzącym.
– Przebudowa budynku w Dąbrówce na integracyjne przedszkole jest z całą pewnością jedną z najważniejszych inwestycji realizowanych na trenie gminy Rzezawa w ostatnich latach. Utworzenie takiego miejsca jest bardzo potrzebne. Obecna siedziba przedszkola zaczyna być już zbyt ciasna. Posiada ona także bariery architektoniczne – mówi Mariusz Palej, wójt gminy Rzezawa.
Wykonawcą zadania jest Zakład Ogólnobudowlany Jan Waz z Mogilna. Teren budowy został przekazany wykonawcy w dniu podpisania umowy, czyli 9 września. Zadanie ma zostać zrealizowane do 14 sierpnia 2020 roku. Gmina Rzezawa na ten cel pozyskała 144 tys. zł z Państwowego Funduszu Rehabilitacji Osób Niepełnosprawnych.










