Władze Bochni przygotowują się do zwiększenia liczby miejsc postojowych w centrum miasta – dodatkowe miejsca miałyby powstać na placu przy ul. Floris oraz przy ul. Piotra Galasa.
Na zlecenie Urzędu Miasta opracowano koncepcję zagospodarowania działek przy ul. Floris, czyli tzw. „ruskim rynku”. W zależności od wybranego wariantu możliwe będzie tam zwiększenie liczby miejsc parkingowych do około 150–154.

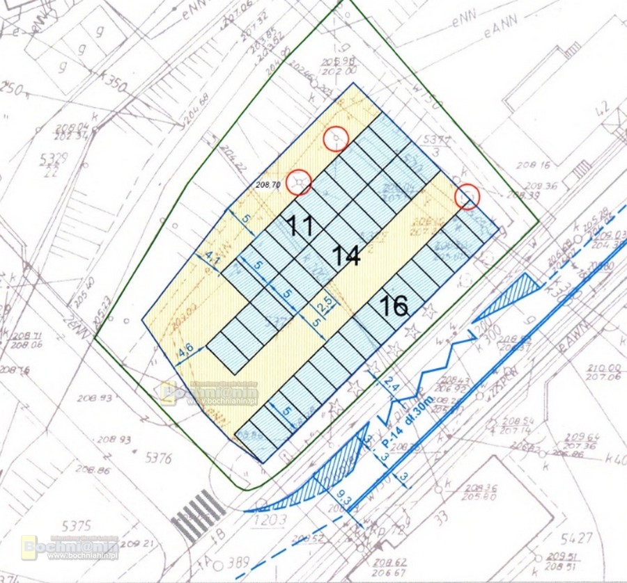
Drugim obszarem objętym planami jest teren przy ul. Piotra Galasa, gdzie dawniej funkcjonował plac postojowy dla busów. Magistrat szacuje, że po modernizacji przestrzeni mogłoby tam powstać od 28 do 44 miejsc postojowych.



Proponowane rozwiązania zaprezentowano publicznie na spotkaniu z przedsiębiorcami pod koniec stycznia, przekazano je także w odpowiedzi na złożoną później interpelację Jana Balickiego (choć jak zaznaczono, radny był na tym spotkaniu obecny). Magistrat zapowiada, że realizacja inwestycji rozpocznie się po potwierdzeniu możliwości technicznych oraz przy sprzyjających warunkach pogodowych.
Miasto podkreśla, że działania te są elementem szerszych starań o poprawę dostępności parkingów w centrum Bochni i mają ułatwić funkcjonowanie lokalnych firm oraz mieszkańców.










